Hoiatus!
Teil pole JavaScript'i kasutamine lubatud, lehekülje funktsioneerimiseks on see aga vajalik.
LOGI SISSE
REGISTREERU
|
ÜÜRITINGIMUSED
Üüriinfo
+372 5300 6333
E-post
info@viljandikorterid.ee
Üürnikule
ÜÜRIKS
POSTI 9
LOSSI 35 (KESKLINN)
PÄRNU MNT 35A
SUUR-KAARE 33 (PAALALINN)
VAKSALI 3A/2 (KESKLINN)
KAEVU 2 (UUEVESKI)
LIIVI 3
PÄRNU MNT 7
JAKOBSONI 3 (KESKLINN)
POSTI 9A
PUIESTEE 12
POSTI 9A GARAAZID
LEMBITU PST. 5
LOSSI 33
JÄRVE TN. 3
KORDUMA KIPPUVAD KÜSIMUSED
KORISTUSJUHEND
LEPINGU NÄIDIS
ÜÜRIMISTINGIMUSED
KORDUMA KIPPUVAD KÜSIMUSED
KORISTUSJUHEND
LEPINGU NÄIDIS
MÜÜGIKS
POSTI 9
LOSSI 35 (KESKLINN)
PÄRNU MNT 35A
SUUR-KAARE 33 (PAALALINN)
VAKSALI 3A/2 (KESKLINN)
KAEVU 2 (UUEVESKI)
POSTI 9A
PUIESTEE 12
POSTI 9A GARAAZID
LEMBITU PST. 5
UUSARENDUS - LIIVI 3/1
LOSSI 33
UUSARENDUS - POSTI 16
PARKIMINE
PANIPAIGAD
KONTAKT
Müügiks - UUSARENDUS - Posti 16
Posti 16 - 9
UUSARENDUS - Posti 16 -
maja info
Tagasi
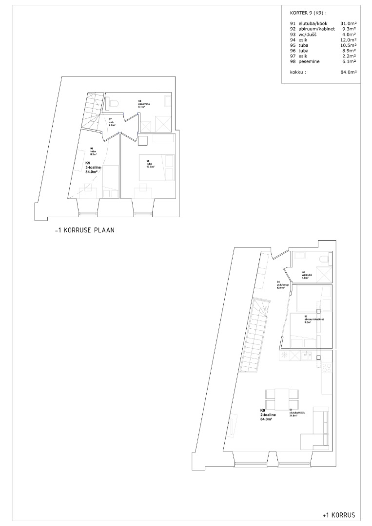
Korrus
1
Tube
4
Üldpind
84
m
2
Korteri info
Kirjeldus
Korruse plaan
Panipaigad
Parkimiskohad
Lisad
• korter läbi kahe korruse
Vabad panipaigad:
Nr
Üldpind
Müügihind
1
2,4 m
2
1 100 €
2
3,6 m
2
1 700 €
3
3,3 m
2
1 600 €
4
3,3 m
2
1 600 €
5
1,9 m
2
900 €
6
1,9 m
2
900 €
7
1,9 m
2
900 €
8
3,3 m
2
1 600 €
9
3,3 m
2
1 600 €
10
1,8 m
2
900 €
11
1,8 m
2
900 €
12
1,9 m
2
900 €
13
1,7 m
2
900 €
14
1,8 m
2
900 €
16
2,9 m
2
1 500 €
17
2,8 m
2
1 400 €
Nr
Müügihind
Staatus
1
2 900 €
Vaba
2
2 900 €
Vaba
3
2 900 €
Vaba
4
2 900 €
Vaba
5
2 900 €
Vaba
6
2 900 €
Vaba
7
2 900 €
Vaba
8
2 900 €
Vaba
9
3 400 €
Vaba
10
3 600 €
Vaba
11
3 600 €
Vaba
Asukoht
Otsid korterit?
Tubade arv
Pole oluline
1 tuba
2 tuba
3 tuba
4 tuba
Asukoht
Kõik
Posti 9
Lossi 35 (Kesklinn)
Pärnu mnt 35A
Suur-Kaare 33 (Paalalinn)
Vaksali 3a/2 (Kesklinn)
Kaevu 2 (Uueveski)
Posti 9a
Puiestee 12
Posti 9a Garaazid
Lembitu pst. 5
UUSARENDUS - Liivi 3/1
Lossi 33
UUSARENDUS - Posti 16
Inimesi mahub
Pole oluline
1 inimene
2 inimest
3 inimest
4 inimest
5 inimest
6 inimest
Kontakt
MÜÜGIINFO
Raul Alliksaar
+372 5620 0300
raul@haamer.net
E-R 10-18
© 2018-2026 2021 Viljandi korterid
|
Äripinnad leiab aadressilt
www.viljandiäripinnad.ee